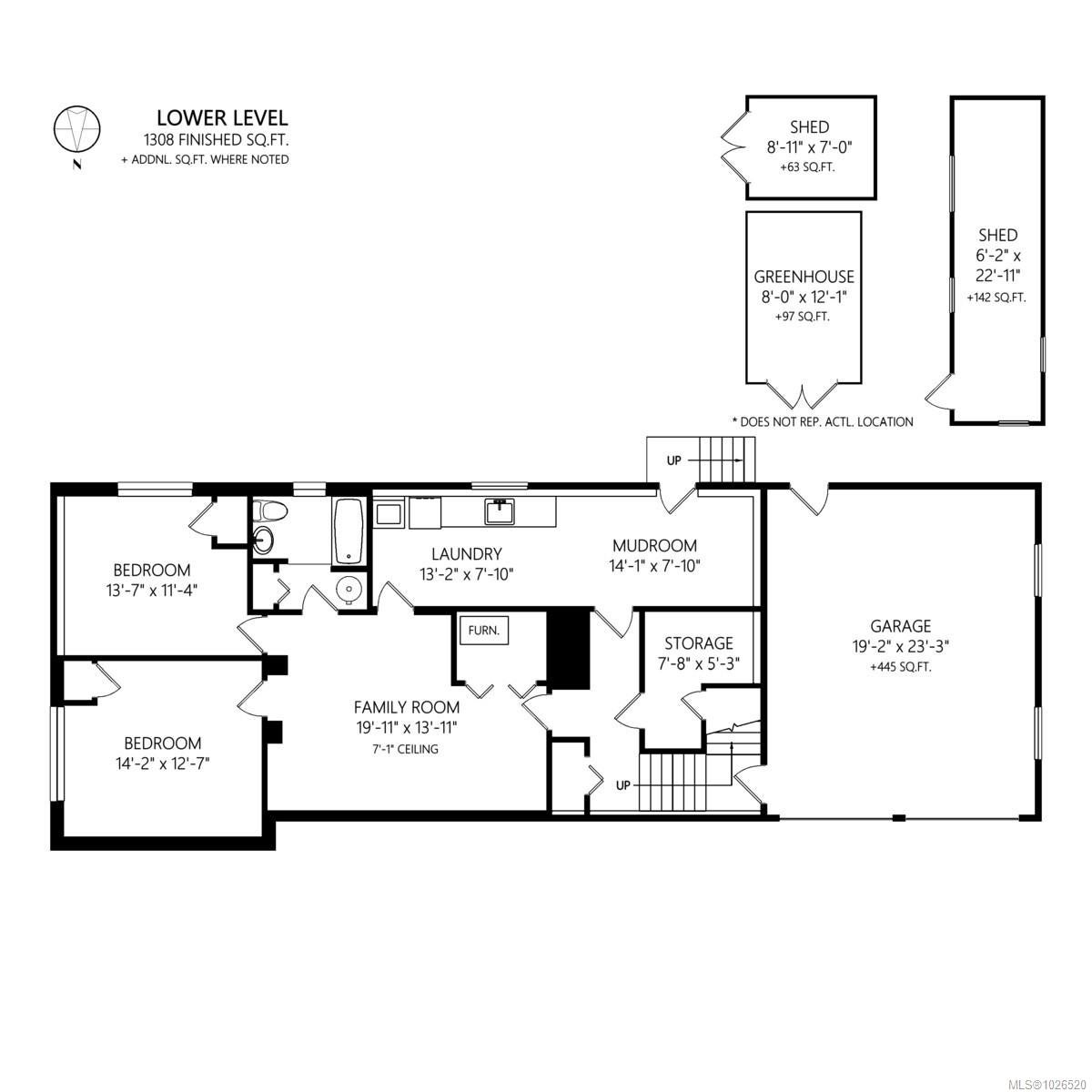
Charming and beautifully updated 4BD/2BA family home on a beautifully landscaped, level 0.35-acre lot in a country setting. Enjoy lush gardens, fruit trees & a true indoor/outdoor lifestyle. Recent updates include heat pump, furnace, A/C (2023), vinyl windows, roof (2017), large deck, and kitchen with quartz counters & more. The main level features a bright living room w/hardwood floors, cozy fireplace & large picture windows, plus a dining area w/built-in shelving & access to the scenic deck. Generous primary bdrm, 2nd bdrm & a 4pc bath complete this floor. The walk-out lower level offers a family room, 2 more bdrms, 4pc bath & laundry/mudroom, ideal for in-laws or an easy mortgage helper. Double garage w/upper storage, plus separate driveway for RV/boat parking. A gardener’s dream w/greenhouse & garden sheds. Meticulous & thoughtfully maintained for 36 yrs making it easy to call this home. Conveniently located near schools, shopping, parks, and rec center in the heart of Saanichton.
Address
1961 Hovey Rd
List Price
$1,265,000
Sold Price
$1,209,000
Sold Date
26/03/2026
Property Type
Residential
Type of Dwelling
Single Family Residence
Transaction Type
Sale
Area
Central Saanich
Sub-Area
CS Saanichton
Bedrooms
4
Bathrooms
2
Floor Area
2,596 Sq. Ft.
Lot Size
15242 Sq. Ft.
Lot Size (Acres)
0.35 Ac.
Year Built
1965
MLS® Number
1026520
Listing Brokerage
One Percent Realty
Basement Area
Finished, Full, Walk-Out Access, With Windows
Postal Code
V8M 1V8
Tax Amount
$4,574.37
Tax Year
2025
Features
Breakfast Nook, Dining Room, Dishwasher, Eating Area, Electric, F/S/W/D, Hardwood, Heat Pump, Mixed, Propane, Propane Tank, Storage, Tile, Vinyl Frames
Amenities
Balcony/Deck, Easy Access, Fencing: Full, Garden, Greenhouse, No Through Road, Park Setting, Primary Bedroom on Main, Private, Quiet Area, Recreation Nearby, Rectangular Lot, Shopping Nearby, Storage Shed, Water Feature

















































































